Marianów, 108 m.kw/1500 m. kw, 4 pok., 2022 r., wykończony
Marianów gm. Leszno Pokaż na mapie ›
Ogłoszenie archiwalne Wygasło: Niedziela, 14 Grudzień, 2025 10:50
1 339 000 zł
12398 zł/m2
Szczegóły ogłoszenia
- Kategoria: Domy / Sprzedaż
- Powierzchnia:108 m2
- Liczba pokoi:4 pokoje
- Pow. działki:1500 m2
- Rynek:Wtórny
- Rok budowy:2022
- Stan:Do zamieszkania
- Forma kuchni:Aneks
- Typ domu:Wolnostojący
- Sprzedaż:Pośrednik
- Inf. dodatkowe:Taras, Ogródek, Garaż
- Cena: 1 339 000 zł / 12398 zł/m2
- Ulica: Al. Dzika
Opis oferty
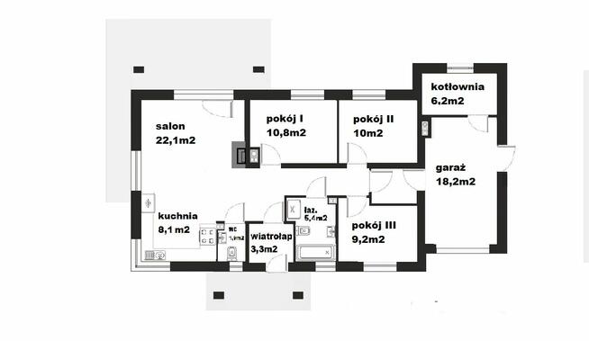
Nowy, wolnostojący dom w otulinie Kampinosu. Budynek parterowy, wybudowany z materiałów najwyższej klasy. Powierzchnia całkowita 108 m. kw, użytkowa 84 m. kw. Salon 22,1 m połączony z kuchnią 8,1 m, trzy sypialnie (10,8 m, 10 m, 9,2 m), łazienka 5 m, wc 2 m, wiatrołap 3,3 m, garaż 18, 2 m, kotłownia 6,2m. Zadaszony taras 30 m. Ogrzewanie podłogowe w całym domu - płytki drewnopodobne. Okna trzyszybowe. Pompa ciepła, rekuperacja, instalacja elektryczna z wyprowadzeniem pod fotowoltaikę. Niskie koszty eksploatacyjne. Działka do zagospodarowania - piękne brzozy, własne grzyby :)Sprawdź zainteresowanie tym ogłoszeniem
Wyświetlenia
Data dodania
Ostatnio widziany
Obserwujących
Wysłane zapytania
Odsłony telefonu
Powiadom o podobnych ogłoszeniach
Lokalizacja: Marianów
Kategoria: Nieruchomości » Domy » Sprzedaż
Cena: od 1138000 zł do 1540000 zł Powierzchnia : od 92 m2 do 124 m2
Chcę otrzymywać powiadomienia o nowych ofertach
Xavier Nieruchomości Sp.z o.o.
Konto firmowe
Na Lento.pl od 11 lip 2016
Strona użytkownika
- Wypromuj ogłoszenie
- Zgłoś naruszenie
- Edytuj/usuń ogłoszenie
- Udostępnij ogłoszenie
- Dodaj na Facebook





















